REQUEST A TOUR If you would like to see this home without being there in person, select the "Virtual Tour" option and your agent will contact you to discuss available opportunities.
In-PersonVirtual Tour

$ 15
$ 15
Key Details
Property Type Commercial
Sub Type Industrial
Listing Status Active
Purchase Type For Rent
Subdivision Rural Puslinch East
MLS Listing ID X12545702
Annual Tax Amount $3
Tax Year 2025
Property Sub-Type Industrial
Property Description
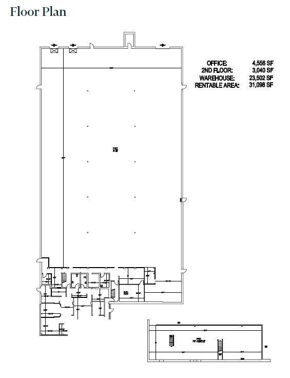
31,098 sq. ft. freestanding, fully climate controlled precast industrial building featuring heavy power with brand new office space. Expansive 40' x 30' bays at 18' clear warehouse area (23,502 sq. ft). 4,556 sq. ft. brand new office built & 3,040 sq. ft. structural second floor for additional functionality. 800A/600V power & 2 dock doors /1 drive-in door. Flexible IND zoning accommodates a wide variety of industrial uses. Prime location with immediate access to Hwy #401 / Brock Road interchange, offers excellent connectivity to major urban centers. Neighbouring property with 2,832 sq. ft. shop on 1.03 AC yard is also available for lease. Possession available January 2026.
Location
Province ON
County Wellington
Community Rural Puslinch East
Area Wellington
Zoning IND
Interior
Cooling Yes
Exterior
Utilities Available Yes
Others
Security Features No
ParcelsYN No
Listed by CBRE LIMITED
GET MORE INFORMATION







