REQUEST A TOUR If you would like to see this home without being there in person, select the "Virtual Tour" option and your agent will contact you to discuss available opportunities.
In-PersonVirtual Tour

$ 649,900
Est. payment | /mo
$ 649,900
Est. payment | /mo
Key Details
Property Type Commercial
Sub Type Land
Listing Status Active
Purchase Type For Sale
Subdivision 540 - Renfrew
MLS Listing ID X12627666
Annual Tax Amount $428
Tax Year 2024
Property Sub-Type Land
Property Description
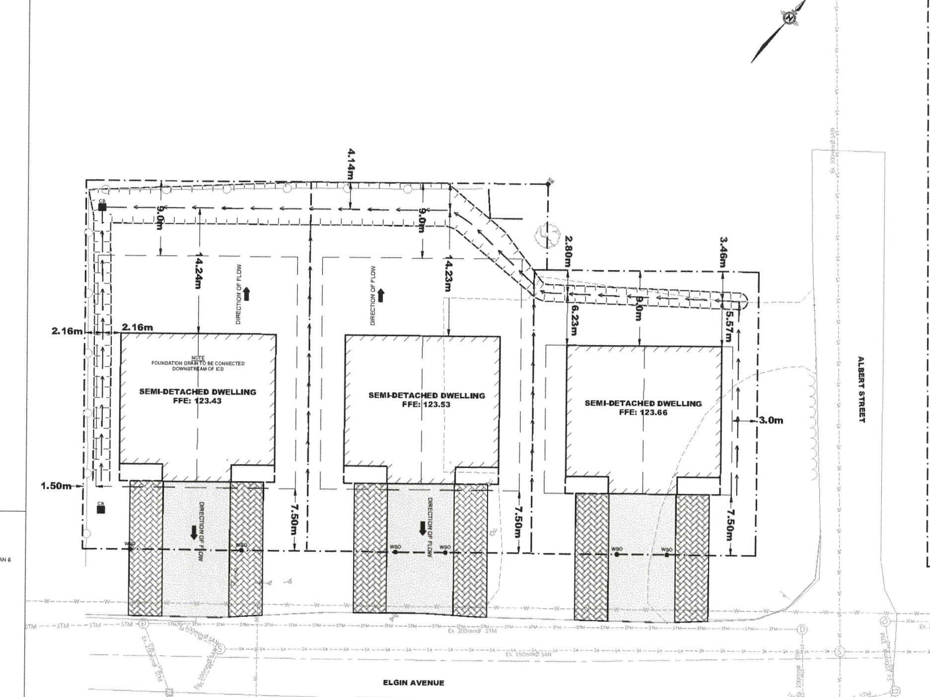
NEW DEVELOPMENT OPPORTUNITY!! Site Plan for 6 SEMI-DETACHED Bungalow Homes with each home designed to include a lower level Secondary Dwelling! A total of 12 DWELLINGS on 6 LOTS. Approx. 255' of street frontage! Located blocks from the Hospital, River, Convenience Store, Tim Hortons, Wendy's and the main Street! Sales includes the Architect Plans and Site Studies. Gas, Hydro, Water and Sewer at the street. Currently zoned CF and requires a zoning Bi-Law amendment to Residential. Newer Back Fence and cleared LOT! Do your due diligence, and see the opportunities. CALL TODAY!!
Location
Province ON
County Renfrew
Area Renfrew
Interior
Cooling Unknown
Exterior
Utilities Available Unknown
Lot Frontage 255.19
Lot Depth 145.9
Others
Security Features Unknown
ParcelsYN No
Listed by RE/MAX HALLMARK REALTY GROUP
GET MORE INFORMATION






