REQUEST A TOUR If you would like to see this home without being there in person, select the "Virtual Tour" option and your agent will contact you to discuss available opportunities.
In-PersonVirtual Tour

$ 699,900
Est. payment | /mo
3 Beds
2 Baths
$ 699,900
Est. payment | /mo
3 Beds
2 Baths
Key Details
Property Type Single Family Home
Sub Type Detached
Listing Status Active Under Contract
Purchase Type For Sale
Approx. Sqft 1100-1500
Subdivision Centre Hastings
MLS Listing ID X12978760
Style Bungalow-Raised
Bedrooms 3
Tax Year 2026
Property Sub-Type Detached
Property Description
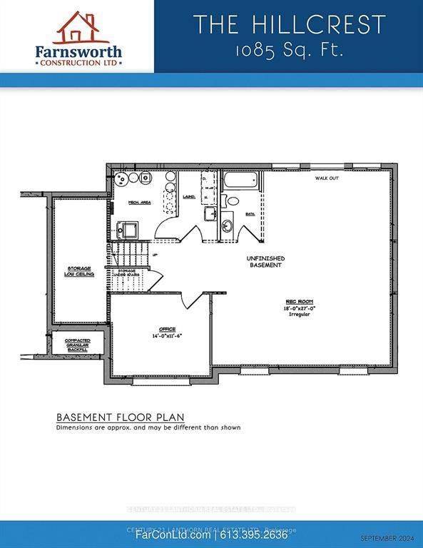
Take advantage of the new pricing and enjoy a new home in the country? How about 2 acres on a paved road with natural gas? Construction is under way, but you still have time to make it your own with some builder color options or upgrades. Offered by Farnsworth Construction, this Hillcrest model offers 1407 sq ft on the main level plus a full unfinished basement with a walk-out, a bath roughed in, and ample space to finish as you please. Main level features a foyer with 3 entrances, open concept K/DR area with access to a covered deck overlooking back yard, a living room with vaulted ceilings, plus 3 bedrooms and 2 baths. Ceramic tile in foyer and bathrooms, and laminate floors throughout main level. Attached double garage with insulated doors and openers, Gentek horizontal vinyl siding, natural gas furnace and A/C. Plus comes with full Tarion warranty. Not the one you are looking for? We have other options on rural lots which may be to your liking.
Location
Province ON
County Hastings
Area Hastings
Rooms
Family Room No
Basement Unfinished, Walk-Out
Kitchen 1
Interior
Interior Features Primary Bedroom - Main Floor
Cooling Central Air
Fireplace No
Heat Source Gas
Exterior
Parking Features Private
Garage Spaces 2.0
Pool None
Roof Type Asphalt Shingle
Lot Frontage 87.75
Lot Depth 165.47
Total Parking Spaces 6
Building
Building Age New
Foundation Poured Concrete
Others
ParcelsYN No
Listed by CENTURY 21 LANTHORN REAL ESTATE LTD.
NEARBY SCHOOLS & PROPERTIES
GET MORE INFORMATION





