0 Victoria ST, Champlain, ON K0B 1K0
0 Victoria ST, Champlain, ON K0B 1K0
0 Victoria ST, Champlain, ON K0B 1K0
0 Victoria ST, Champlain, ON K0B 1K0
0 Victoria ST, Champlain, ON K0B 1K0
REQUEST A TOUR If you would like to see this home without being there in person, select the "Virtual Tour" option and your agent will contact you to discuss available opportunities.
In-PersonVirtual Tour
Shaleni Henriquez

Shaleni Henriquez

Henriquez Home Group

+1(905) 462-9801
$ 8,600,000
Est. payment | /mo

19 Sqft Lot


Save
$ 8,600,000
Est. payment | /mo
Save

19 Sqft Lot

Key Details

Property Type Commercial

Sub Type Land

Listing Status Active

Purchase Type For Sale

Subdivision 611 - L'Orignal

MLS Listing ID X13012404

Tax Year 2025

Lot Size 19 Sqft

Property Sub-Type Land

Property Description

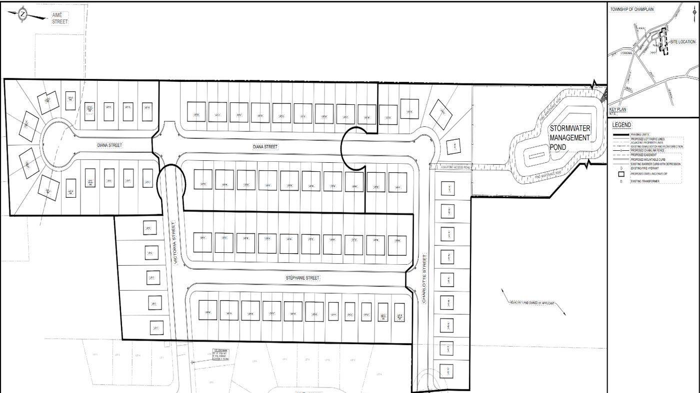
Prime 114-unit residential development opportunity, located near Highway 117 in L'Orignal, approximately 1 hour from Montreal and Ottawa. Preliminary subdivision approval in place for 30 single-family homes and 84 semi-detached units. Rare opportunity for a quick-start project in a growing corridor. The site has undergone extensive engineering review and approvals, including servicing, stormwater management, and supporting technical studies, positioning the project for execution. Note: The exact boundaries and area will be confirmed by a final survey. Located approximately one hour from Ottawa and Montreal, and minutes from key amenities including Walmart and Canadian Tire. (HST is in addition to the sale price.)

Location

Province ON

County Prescott And Russell

Area Prescott And Russell

Exterior

Community Features Major Highway

Utilities Available Available

Others

ParcelsYN No

Listed by PMML INC.
NEARBY SCHOOLS & PROPERTIES

GET MORE INFORMATION

Name

Name

Phone*

Phone

Message

Message
Shaleni Henriquez

+1(905) 462-9801

shaleni@soldbyshaleni.com

Go tour this home

0 Victoria ST